*VERKAUFT* Charmantes Häuschen mit kleinem Garten an ruhigem Anliegerweg

80807 München / Milbertshofen, Reihenmittelhaus zum Kauf

Objektdaten

  • Objekt ID
    25517
  • Objekttypen
    Haus, Reihenmittelhaus
  • Adresse
    80807 München / Milbertshofen
  • Wohnfläche ca.
    97 m²
  • Grund­stück ca.
    116 m²
  • Nutzfläche ca.
    49 m²
  • Zimmer
    4
  • Schlafzimmer
    0,0
  • Badezimmer
    2
  • Terrassen
    1
  • Befeuerung
    Gas
  • Baujahr
    1953
  • Zustand
    gepflegt
  • Verfügbar ab
    sofort
  • Preis
    auf Anfrage

Ausstattung / Merkmale

  • ✓ Einbauküche
  • ✓ Terrasse

Kontaktdaten

Sebastian-Mathias Hueber

Energie­verbrauchs­ausweis

  • Gültig bis
    24.05.2035
  • Gebäudeart
    Wohngebäude
  • Baujahr lt. Energieausweis
    1953
  • Primärenergieträger
    Gas
  • Energie­effizienz­klasse
    E
  • Energie­verbrauchs­kennwert
    144.43 kWh/(m²·a)
  • 0 25 50 75 100 125 150 175 200 225 250+ H G F E D C B A A+ H G F E D C B A A+ Endenergieverbrauch 144,40 kWh/(m²·a) 0 25 50 75 100 125 150 175 200 225 250+ H G F E D C B A A+ H G F E D C B A A+ Endenergieverbrauch 144,40 kWh/(m²·a)

Objekt­beschreibung

Beschreibung

Dieses charmante Reihenmittelhaus aus den 50er Jahren liegt an einem ruhigen Anliegerweg im beliebten Stadtteil Milbertshofen und wurde Anfang der 2000er Jahre umfassend modernisiert.

Im Erdgeschoss erwartet Sie ein heller Wohnbereich mit bodentiefen Fenstern, die den Blick direkt auf die gemütliche Terrasse und den gemütlichen, kaum einsehbaren Garten freigeben – ein wunderbarer Ort für entspannte Stunden im Freien. Ihre Kinder können hier sicher spielen, da nur ein Anliegerweg vor dem Haus verläuft. Die separate Küche ist funktional ausgestattet und bietet Platz für einen Essbereich.

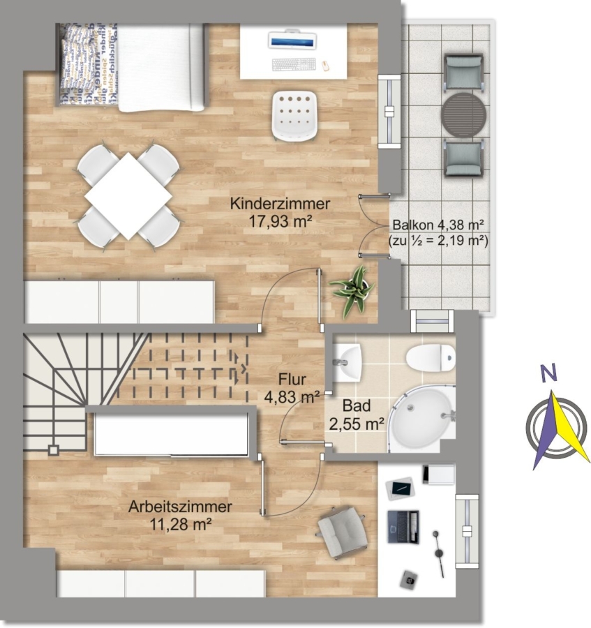
Im Obergeschoss befinden sich ein Schlaf- oder Kinderzimmer mit Balkon, ein kompaktes Duschbad und ein weiteres Zimmer, durch das man die Treppe zum DG erreicht. Das ausgebaute Dachgeschoss ist offen gestaltet, mit hochwertigem Parkettboden und einer stilvollen Holztreppe – ideal als großzügiges Schlafzimmer, Arbeits- oder Rückzugsraum. Hier lassen sich ohne großen Aufwand zwei getrennte Räume realisieren.

Das Untergeschoss überrascht mit einem Wannenbad und viel Stauraum.

Ob Familie, Paar oder Single mit Platzbedarf – dieses Haus ist ein liebevoller Rückzugsort mit viel Charme und Potenzial.

Ausstattung

  • Kunststofffenster von 2003 (2-fach verglast)
  • Gas-Zentralheizung von 2004
  • Elektrik 2003 erneuert
  • Dachgeschoss aufgestockt 2019
  • Terrasse mit Garten
  • Einbauküche
  • Balkon im OG
  • Duschbad im OG
  • Bad mit Wanne im UG
  • Parkettboden im DG
  • Böden OG erneuert 2020
  • Fliesenböden in den Bädern sowie in der Küche
  • Kellertreppe erneuert 2021
  • Keller-/Hobbyraum im Untergeschoss
  • KEINE Garage/Stellplatz

Sonstiges

Alle Angaben sind ohne Gewähr und basieren ausschließlich auf Informationen, die uns von unserem Auftraggeber zur Verfügung gestellt wurden. Wir übernehmen keine Gewähr für die Vollständigkeit, Richtigkeit und Aktualität dieser Angaben.

Lage

Die Umgebung bietet eine gute Infrastruktur mit Einkaufsmöglichkeiten, Schulen und Freizeitangeboten. Der nahegelegene Olympiapark lädt zu vielfältigen Aktivitäten ein. Dank der Anbindung an die Tram und U-Bahn sowie mehreren Buslinien ist die Münchner Innenstadt schnell erreichbar.

- Bus 140, 141 (Freiligrathstraße): ca. 3 Gehminuten
- Tram 12, 23 (Anni-Albers-Straße): ca. 6-8 Gehminuten
- U-Bahn U2 (Milbertshofen): ca. 10 Gehminuten
- Zahlreiche Supermärkte, Bäckereien, Cafés und Restaurants in der Umgebung
- Grundschule: ca. 5 Gehminuten

Mit dem ÖPNV von der Haustür zum...
... Marienplatz: ca. 20-25 Minuten
... Hauptbahnhof: ca. 25-30 Minuten
... Flughafen: ca. 1 Stunde

Die dargestellte Position ist nur eine ungefähre Angabe.

Direktanfrage

Unsere Datenschutzhinweise finden Sie hier.

* Pflichtangaben
 SSL-verschlüsselt